BLOCK HOUSE

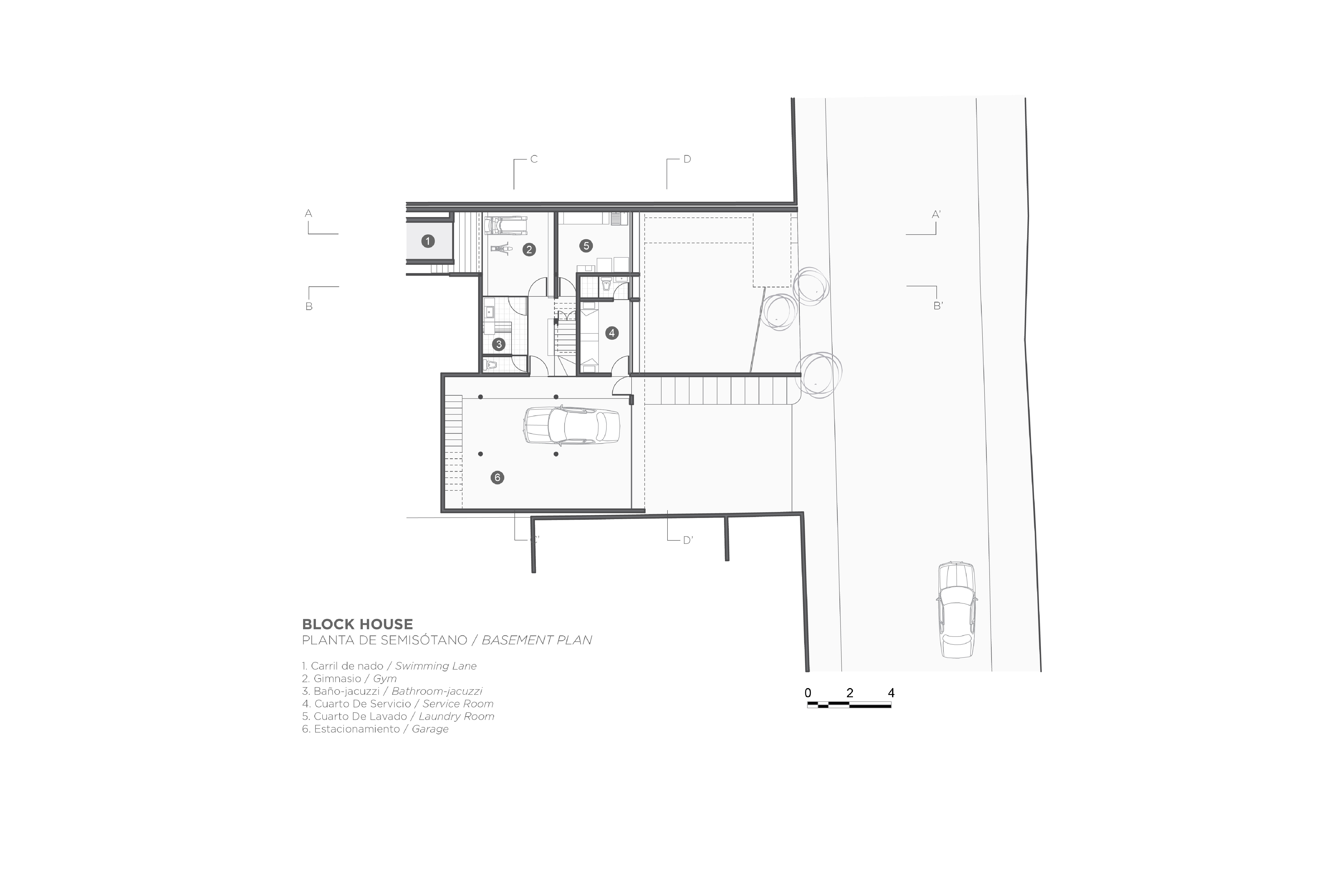
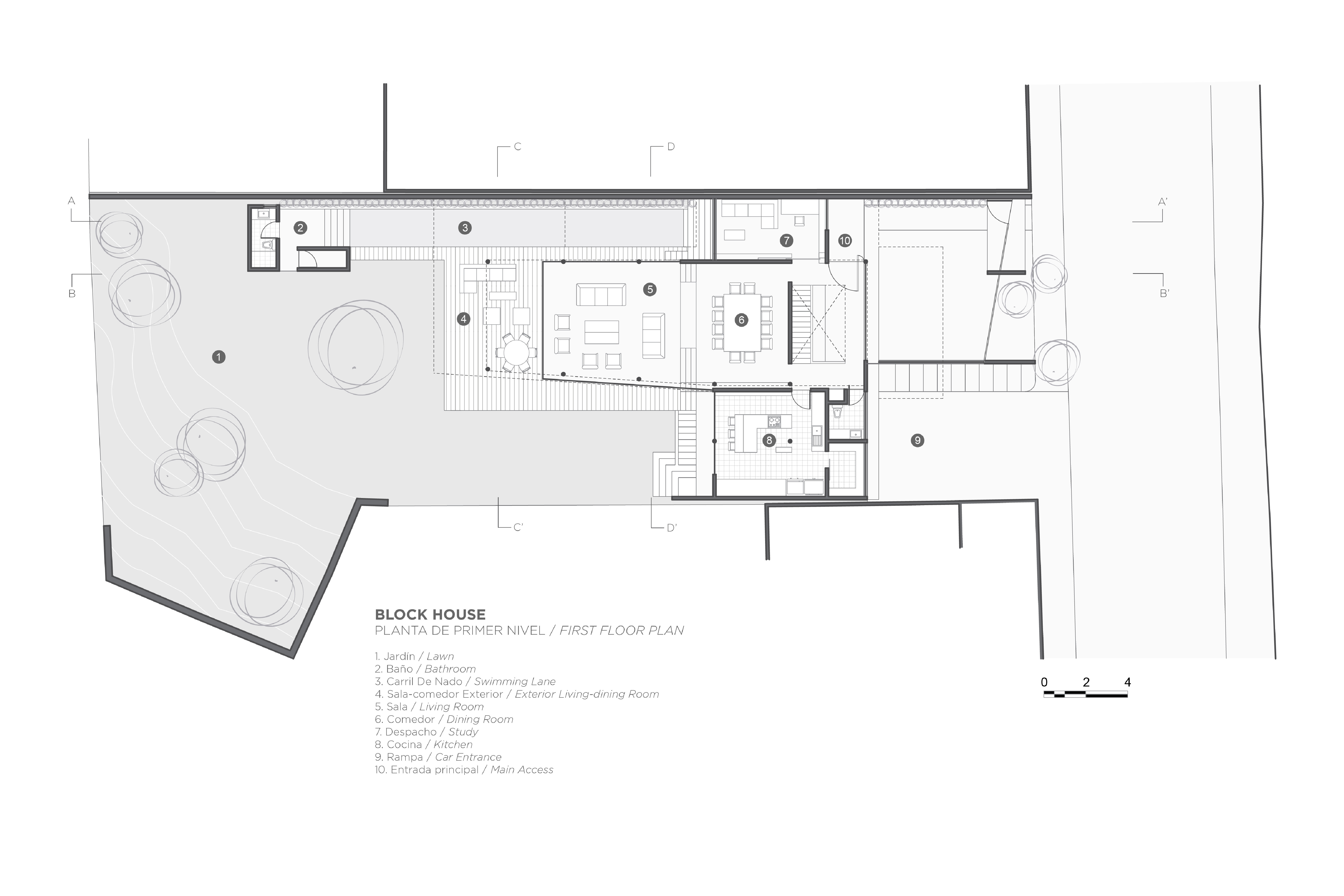
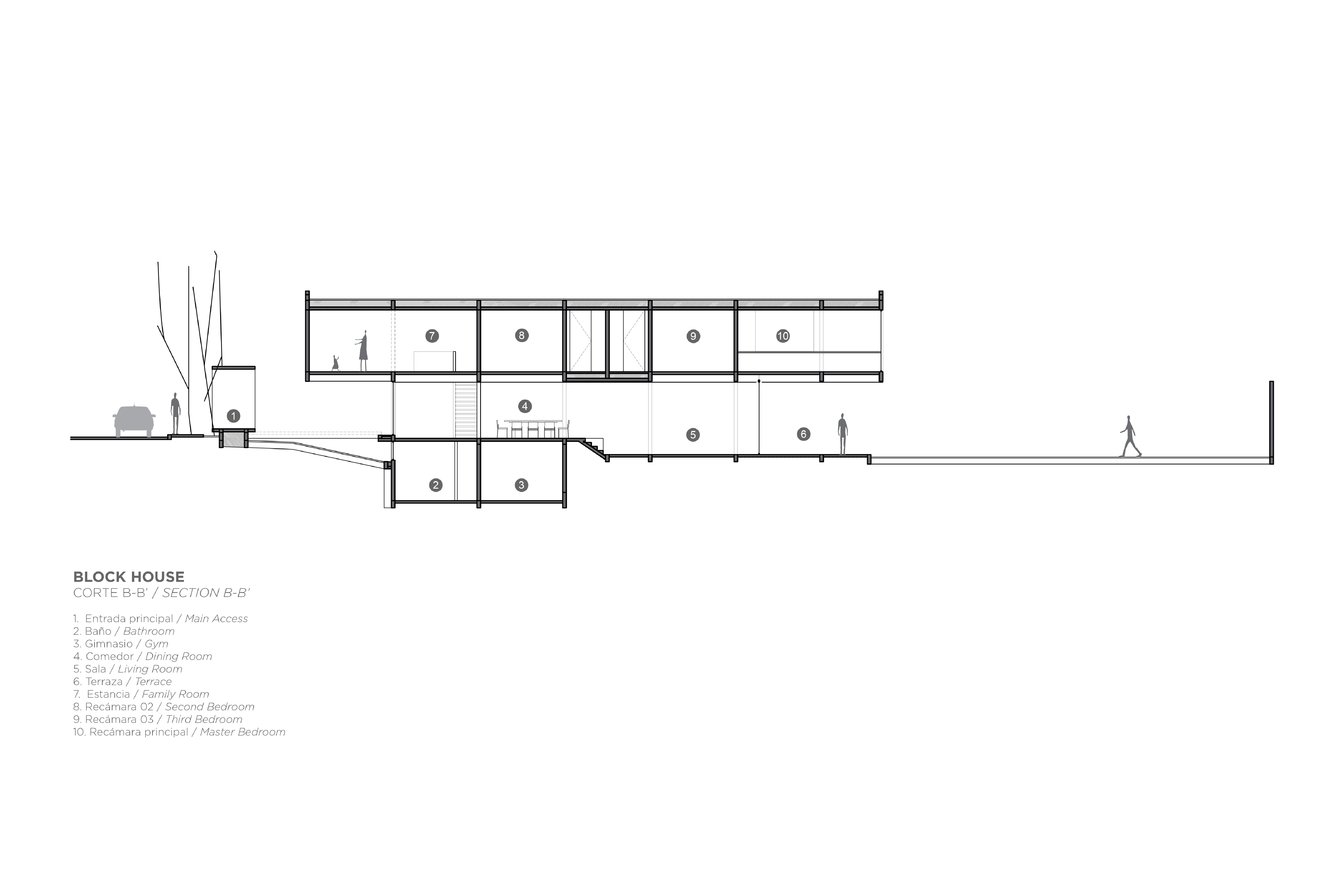
Block House nace a partir de la superposición transversal de dos volúmenes, creando un juego de contrastes entre sólidos y vacíos. Un prisma longitudinal de concreto negro cobra protagonismo al elevarse del terreno y posarse sobre otro, de concreto gris, en un equilibrio no geométrico. El carril de nado, elemento fundamental en el que tuvo origen el encargo, se ubicó a un costado de la colindancia, desplazando el volumen y abriendo así una entrada de luz hacia la planta baja, que baña toda la extensión de la casa.

Bajo el volumen suspendido se ubicaron las áreas comunes, en directa relación con los exteriores, mientras que las áreas privadas se ubicaron arriba, en una condición de mayor intimidad. La azotea del volumen transversal se aprovecha con una terraza, que da servicio a toda la planta alta.

El diseño estructural estuvo orientado por la intención de otorgar ligereza y volatilidad a las formas. Esbeltas columnas soportan el prisma negro y liberan el espacio bajo este. La materialidad enfatiza lo sólido con lo ligero. La madera y los acabados en mármol complementan la estética del conjunto.

Block House propone una forma que invita a habitar adentro y afuera.

 

Diseño de proyecto: A-001 Taller de Arquitectura

Equipo de diseño: Arq. César Pérez, Arq. Jaime Salgado

Diseño estructural: Ing. Gerardo Pastrana

Fotografía: Jaime Navarro