CASA GUADALUPE

Toda una vida de devoción por la Virgen de Guadalupe orienta el diseño de esta casa en la colonia San Ángel Inn, en el poniente de la Ciudad de México.

El manto que protege y cubre a la virgen, principal elemento iconográfico, contiene un cúmulo de símbolos paganos y santos que son el vehículo para su mensaje y la construcción de la fe en torno a ella. Su color reúne las propiedades del agua con las de la tierra. Estos aspectos se observan y traducen en un elemento arquitectónico ordenador, el manto de la casa, una forma irregular pero continua, con una geometría facetada que acompaña el recorrido y desarrollo de los espacios.

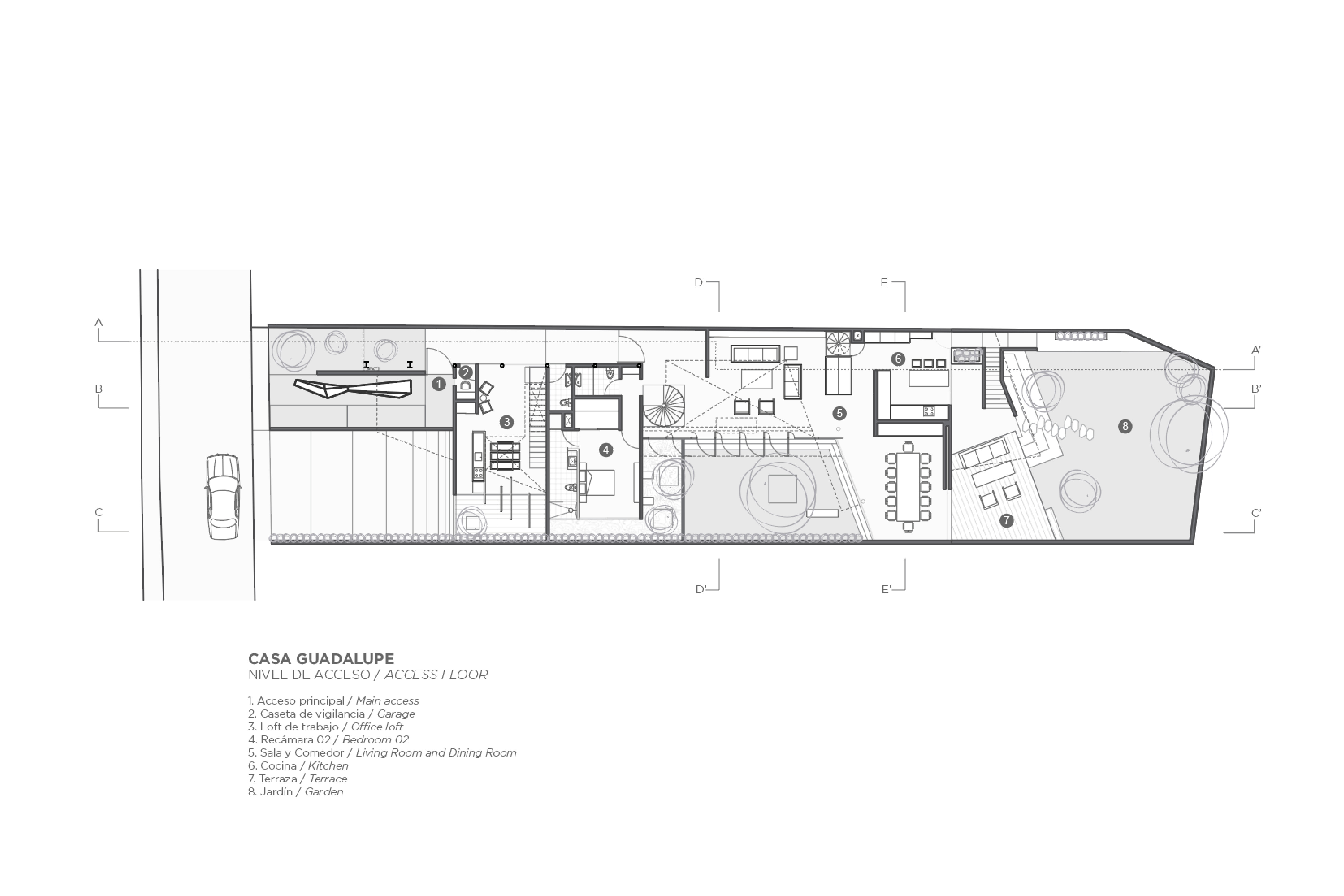
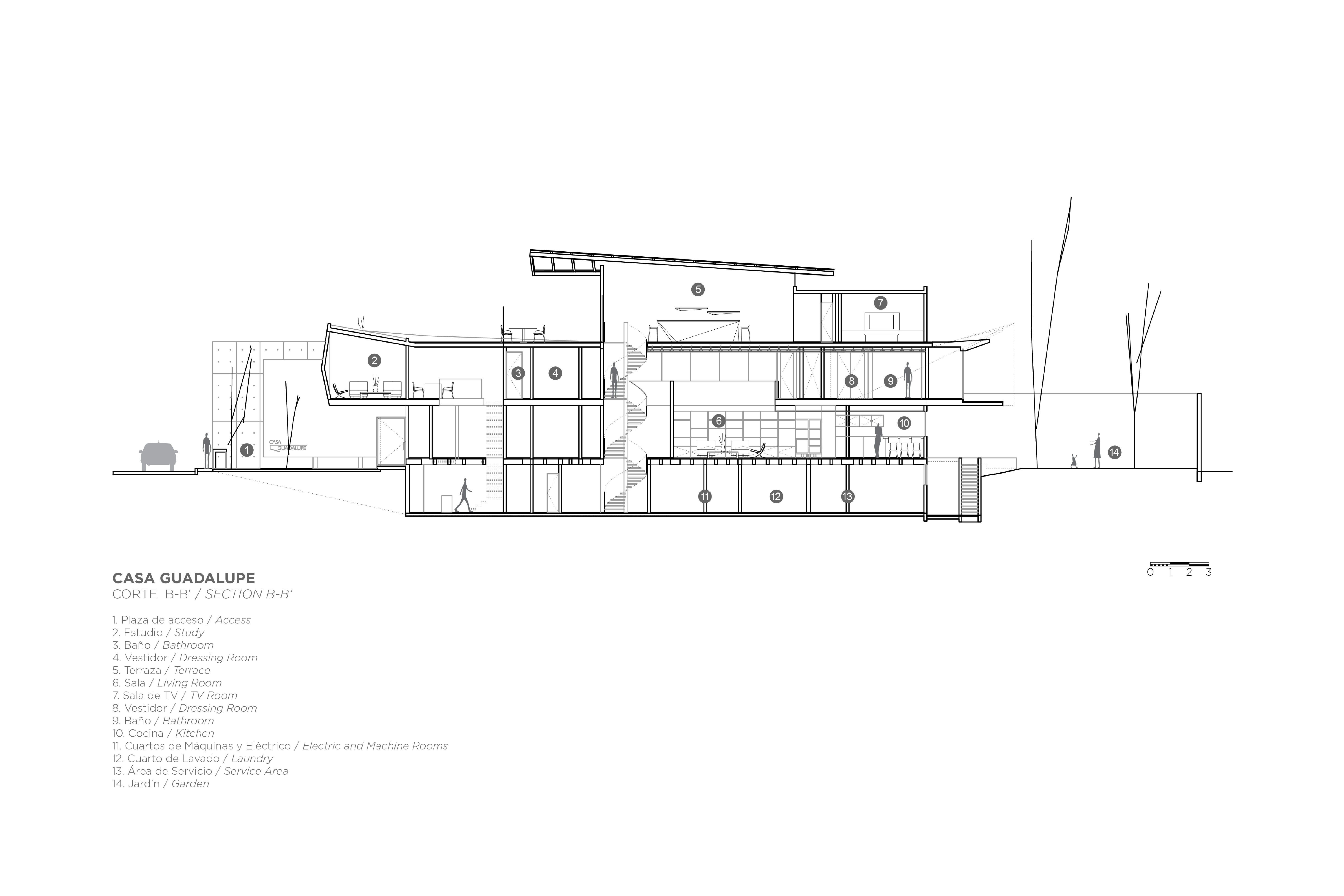
La disposición del programa arquitectónico significó un desafío importante, buscando dar respuesta a las necesidades de un núcleo familiar no convencional, además de espacios de trabajo, mucha luz y privacidad. Un conjunto versátil y funcional. Siendo el terreno más largo que ancho, se definió una división transversal y una vertical, en niveles.

La sección residencial principal se ubicó en la parte trasera y se accede a ella por un costado del edificio, mientras que el estudio se encuentra adelante, próximo al acceso y la calle. En la azotea se dispusieron las amenidades, como la terraza, alberca, salón de juegos y un bar.

Con respecto a los materiales, predomina el concreto turquesa del manto y el concreto natural en el resto de la estructura; interiores acabados en blanco y elementos de madera en contraste.

La Casa Guadalupe es una renovada interpretación de un elemento icónico de la cultura mexicana y una narrativa del carácter del habitante.

 

Diseño de proyecto: A-001 Taller de Arquitectura

Equipo de diseño: Arq. Miguel Patiño, Arq. Arturo Olavarrieta, Arq. Lizette Payno, Arq. Christian Morales.

Diseño estructural: Ing. Fernando Calleja.

Instalaciones: Estar Arquitectura.

Paisaje: Entorno