CoLiving Tabacalera
CoLiving Tabacalera, antes un edificio de oficinas abandonado durante años, ha sido revitalizado.
La transformación de este edificio antiguo representó un desafío importante, combinar su historia con la modernidad. Se logró al conservar su estructura original y minimizar las intervenciones, incluso en una zona sísmica, demostrando un enfoque sostenible al reutilizar recursos.
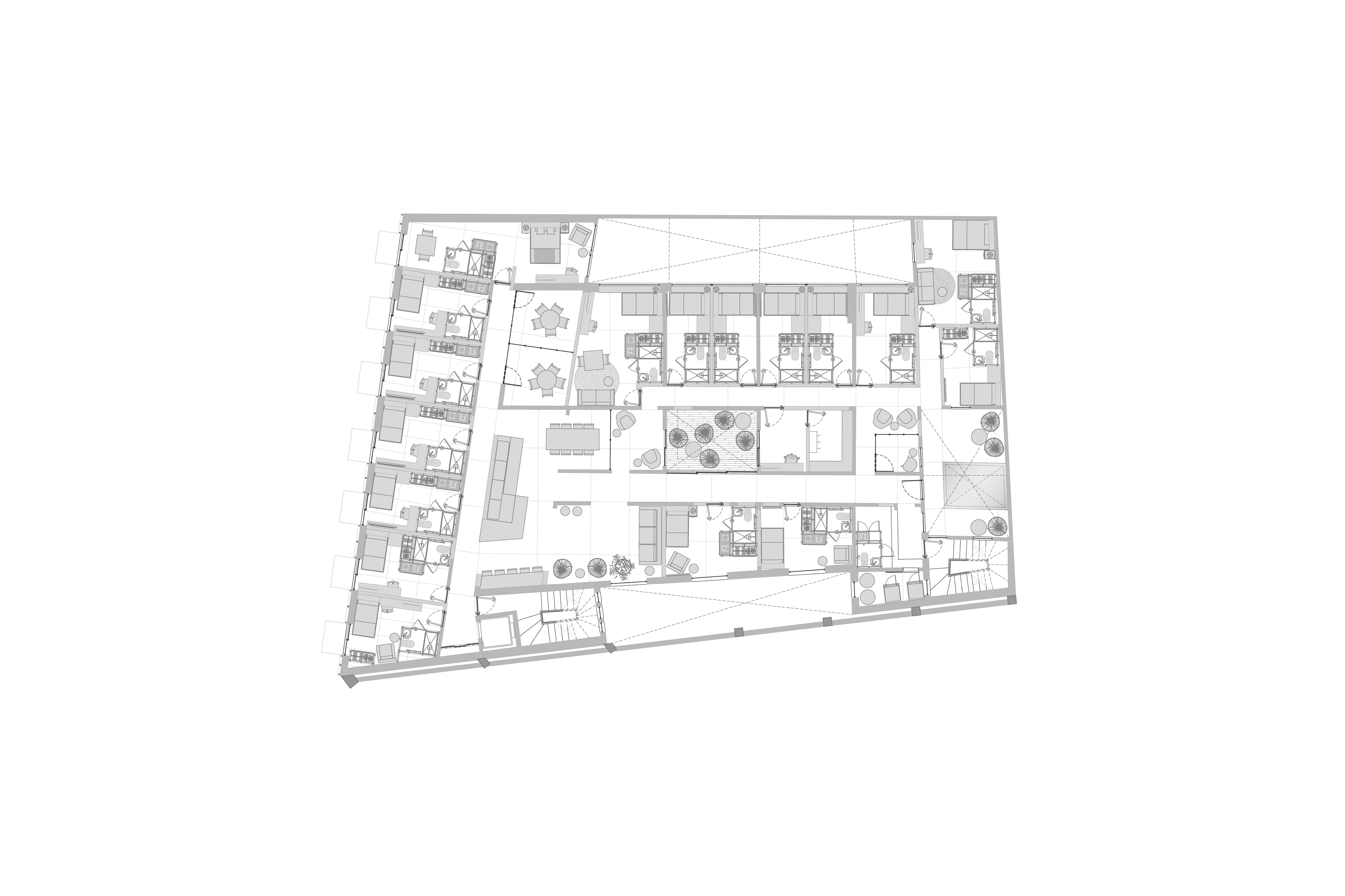
La visión detrás de CoLiving Tabacalera era clara: convertirlo en un hogar acogedor y contemporáneo. Distribuido en tres niveles, cada uno tenía un propósito definido.
El primer nivel alberga un espacio de coworking, fomentando la colaboración. El segundo nivel presenta una cocina común para promover la interacción culinaria. Por último, el tercer nivel ofrece áreas recreativas, creando un ambiente vibrante y social.
La introducción de estructuras de baños independientes fue clave para viabilizar el proyecto. Estos elementos funcionales se convirtieron en muebles que albergan baños y esenciales, permitiendo dos tipos de unidades habitacionales. Las más grandes, de 18 a 23 metros cuadrados, incluyen cocinetas; las más pequeñas, de 11 metros y medio, tienen baños privados. La materialidad desempeña un papel esencial en la transformación. Los pisos de madera de encino aportan calidez, mientras los muros divisorios de tablaroca permiten flexibilidad en la distribución. Las altas alturas del edificio se aprovecharon para dejar las losas expuestas, creando un ambiente industrial y moderno.
La esencia de CoLiving Tabacalera radica en el CoLiving. Baños y espacios húmedos se vuelven móviles, reorganizables según las necesidades cambiantes de los residentes. Esta flexibilidad ofrece adaptación futura y versatilidad al diseño. El proyecto trasciende el rediseño arquitectónico: es una invitación a la innovación y adaptabilidad en el diseño de espacios.
La transformación exitosa demuestra que incluso los edificios antiguos pueden tener nueva vida y propósito. CoLiving Tabacalera inspira a futuros proyectos de reconversión arquitectónica.





